Essa casa de alto padrão pode ser sua!
Imóvel com documentação 100% regularizada e pronto para financiamento.
Ambientes e Espaços Externos
Espaços planejados para o seu conforto, lazer e funcionalidade, com ambientes internos sofisticados e uma área externa encantadora.
Ambientes
3 quartos (sendo uma suíte com área para closet)
Banheiro Social
Área para escritório
Cozinha integrada com infraestrutura para ilha
Churrasqueira
Lavabo
Lavanderia
Garagem coberta para 02 carros
Hobby box
199,03 m²
Área Externa e Paisagismo
Iluminação externa
Paisagismo executado
Acabamentos e Materiais de Alta Qualidade
Espaços projetados para viver com estilo, conforto e sofisticação.
Piso e Cerâmica: Portobello
Vinílico nos quartos e escritório
Fiação: Corfio
Tubulação: Tigre
Acabamento elétrico: Pial Plus
Esquadrias: Linha Gold
Disjuntores: Schneider
Tinta: Renner
Deck: Madeira tratada
Portas Principal: Ripada em angelim
Rodapé e portas: Pormade
Vidros: Bronze
Estrutura e Funcionalidades
Infraestrutura completa com tecnologia, sustentabilidade e detalhes que garantem segurança, conforto e praticidade.
Fotos em 360 graus da infraestrutura
Manual do proprietário de uso e manutenção
Guarda-corpo de escada interna instalado
Preparação para Jacuzzi
Água de reaproveitamento da chuva
Localização...
Encante-se com esta casa incrível no renomado Condomínio Blue, no DeltaVille, Biguaçu! Com design sofisticado, acabamentos premium e uma localização privilegiada, esta residência oferece conforto, segurança e qualidade de vida. Perfeita para quem busca viver com estilo em um dos melhores bairros da Grande Florianópolis."
Galeria
Explore cada detalhe deste sonho de casa através da nossa galeria de imagens e descubra o lugar perfeito para viver momentos inesquecíveis.

























































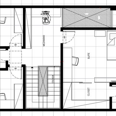
Plantas
Descubra todos os detalhes e a inteligência do design com a nossa planta arquitetônica: funcionalidade e beleza em perfeita harmonia.


Contato
Não perca a oportunidade de viver no lar dos seus sonhos! Entre em contato agora e descubra como esta casa incrível pode ser sua.
Realizamos obras de alto padrão e design.
Contato
© 2024. All rights reserved.












